
'brückenpark müngsten visitors center' by pool 2 architekten in müngsten, germany
'brückenpark müngsten visitors center' by german practice pool 2 architekten is
a two-storey public facility and restaurant located in the valley of the river wupper.
providing generous views of germany's highest steel railroad bridge, the 'mungsten bridge',
the building features an industrial facade that complements and references both
the natural and artificial elements of the site.

(left) aerial view of site
(right) the mungsten bridge in the background
consisting of a restaurant and a cafe, the visitors' center sits on the edge of the river on an
expansive concrete plaza. the rectangular volume orientated towards the water accommodates
the dining area which is fronted by large windows to overlook the park. the ground floor also
holds a spacious hall that serves as an open area to host a variety of events, functions and seminars.
a small club lounge with panoramic views of the mungsten bridge as well as an additional
dining space is held on the second level.

view from the river
wrapped in panels of weatherproof constructional steel, the building is characterized by
a rust-coloured surface that blends in with the tones of the site. employing an iconic, pitched roofline,
the interior benefits from simple cuts in the mass, providing abundant natural sunlight into the loft gallery.

outdoor dining space - front plaza

constructional steel facade

(left) cafe counter
(top right) view of the park from the dining space
(bottom right) interior seating

night view

physical model

site plan

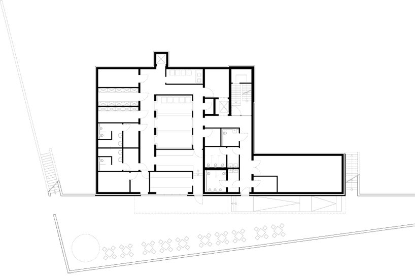
floor plan / level -1

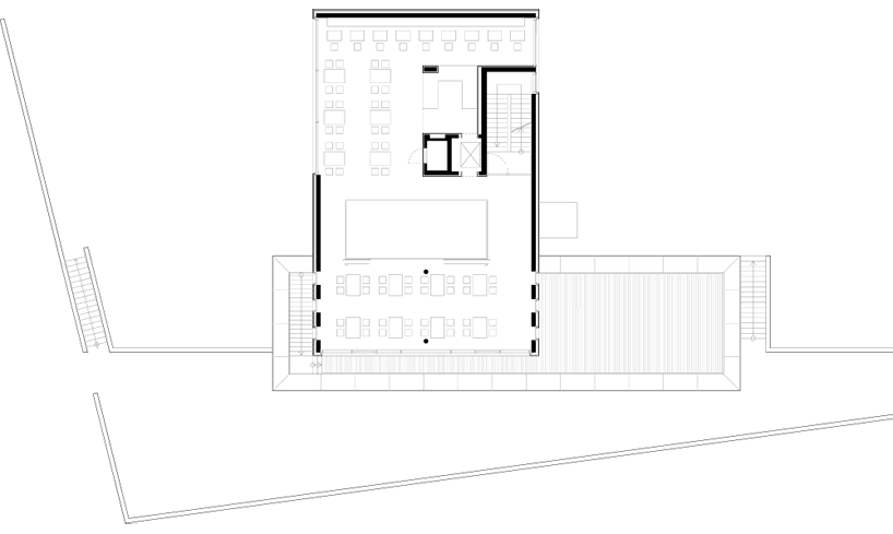
floor plan / level 0

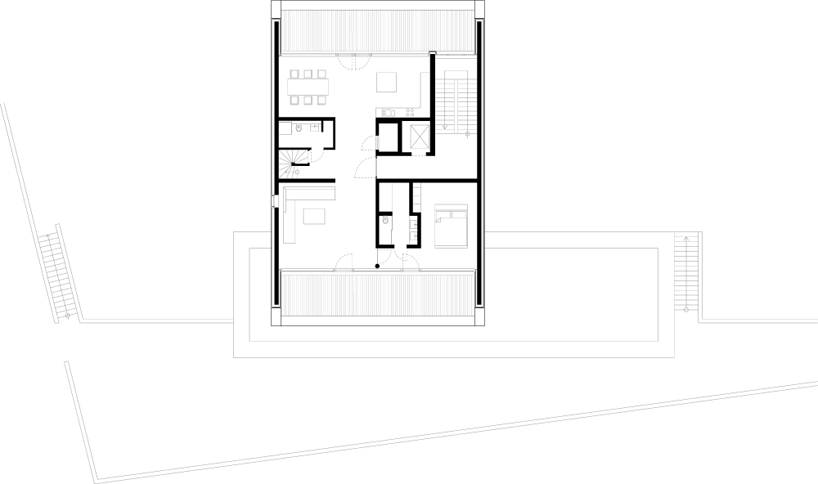
floor plan / level +1

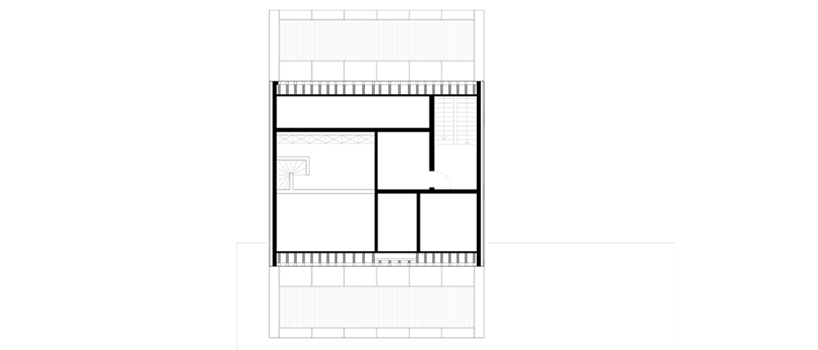
floor plan / attic

floor plan / loft

cross section

west elevation

east elevation

south elevation

north elevation
http://www.designboom.com/weblog/cat/9/view/13708/pool-2-architekten-bruckenpark-mungsten-visitors-center.html
Δεν υπάρχουν σχόλια:
Δημοσίευση σχολίου